0
https://d.ifengimg.com/w120_h90/x0.ifengimg.com/house/2025/12/01/3c082b92d7774b30c8bb410536ea385f.jpg
淘宝建火箭基地?全球快递或迈入“小时达”时代!
淘宝建火箭基地?全球快递或迈入“小时达”时代!-来自凤凰新闻客户端
https://ihouse.ifeng.com/pic/2025_12_01-38920329_0.shtml
0/0
  • 淘宝建火箭基地?全球快递或迈入“小时达”时代!

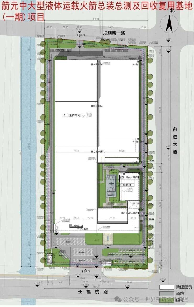
    近日,据杭州市规划和自然资源局最新消息,箭元科技打造的“中大型液体运载火箭总装总测及回收复用基地”项目设计方案正式公布。

  • 淘宝建火箭基地?全球快递或迈入“小时达”时代!

    据悉,2025年10月28日,杭州箭元航天科技有限公司以5692万元成功竞得杭州市钱塘区一块一类工业用地。该地块位于杭州市钱塘区前进单元,东至前进大道,南至长福杭路,西临东二河,北至规划新一路,占地7.2万平方米,总建筑面积约61977.5平方米,计容面积149327.9平方米,出让年限为50年。

  • 淘宝建火箭基地?全球快递或迈入“小时达”时代!

    项目名称为“箭元中大型液体运载火箭总装总测及回收复用基地(一期)”,目前即将开始动工。基地选址钱塘江边,看中的是水运优势,便于大型火箭部件的运输,未来将成为中国民营火箭物流的“超级工厂”,标志着全球“小时达”的物流革命已箭在弦上。

  • 淘宝建火箭基地?全球快递或迈入“小时达”时代!

    基地设计完美契合航天制造的特殊要求,由于要满足直径4.2米、高度26.8米的大型火箭总装需求,建筑采用大跨度、高荷载设计。由大型生产车间、综合楼及配套设施组成。大型生产车间最高达49.9米,远超一般工业厂房高度。

  • 淘宝建火箭基地?全球快递或迈入“小时达”时代!

    主体建筑采用模块化拼接设计,外观选用浅灰色工业板材,整体轮廓舒展流畅,充满科技感。基地内部功能分区明确,包括总装车间、测试区域、仓储空间等,各区域通过便捷通道连接,确保火箭从部件组装到测试出厂的流程高效顺畅。

  • 淘宝建火箭基地?全球快递或迈入“小时达”时代!

    据了解,2025年5月29日,淘宝与箭元科技合作完成首次火箭快递验证试验。“元行者一号”全尺寸验证型火箭搭载20公斤快递,在2.5公里低空飞行125秒后,准确溅落预定海域,货物完好无损。试验包裹包括国图文创、太空主题商品和纪念明信片,证明了火箭运输的可行性。这次成功为航天快递商业化迈出了关键一步。

  • 淘宝建火箭基地?全球快递或迈入“小时达”时代!

    “元行者一号”是一款采用“不锈钢箭体+液氧甲烷”方案的可回收火箭,直径4.2米,总高度约26.8米,起飞质量约57吨。其货仓容积达120立方米,最大载重能力达10吨,不仅能运送普通快件,甚至可承载小型轿车等大件货物。

  • 淘宝建火箭基地?全球快递或迈入“小时达”时代!

    箭元科技成立于2019年,是国内首个采用“不锈钢箭体+液氧甲烷”方案开发可回收可复用中大型运载火箭的民营企业,技术路线与SpaceX的“星舰”类似,旨在实现低成本、高频次发射。淘宝官方表示:“随着全世界民营航天体系的发展而带来的整体成本下降,火箭送快递肯定有机会成为淘宝的可选物流方式。”

  • 淘宝建火箭基地?全球快递或迈入“小时达”时代!

    与SpaceX星舰侧重大宗商品运输不同,淘宝与箭元科技的合作更贴近民用市场。目前,“箭元淘宝小时达试验室”正优化货仓布局与装卸流程,力求解决最后一公里投递难题。未来,当杭州基地的首枚量产火箭升空,我们在淘宝下单的生鲜、美妆,或许真能跨越山海,在60分钟内送达手中。从钱塘江边打下的第一根桩基开始,物流的太空时代已然拉开序幕。

  • 淘宝建火箭基地?全球快递或迈入“小时达”时代!