https://s0.ifengimg.com/2018/02/01/fangchan_d0c0fd07.png
楼盘测评 | 首付308万起!97-173㎡的四环改善盘「长安悦玺」 - 凤凰网房产北京
今天小编带大家探盘的项目是融创在石景山的项目「长安悦玺」。石景山前两年新盘众多,古城区域曾经一度有“售楼处一条街”,是京西新房的主战场。如今硝烟散去,大多数项目已经清盘,尚在销售的新盘寥寥 -来自凤凰新闻客户端
https://ihouse.ifeng.com/news/2021_08_20-54546914_0.shtml

楼盘测评 | 首付308万起!97-173㎡的四环改善盘「长安悦玺」

凤凰网房产
2021-08-20 14:35

今天小编带大家探盘的项目是融创在石景山的项目「长安悦玺」。

石景山前两年新盘众多,古城区域曾经一度有“售楼处一条街”,是京西新房的主战场。如今硝烟散去,大多数项目已经清盘,尚在销售的新盘寥寥。已经清盘的项目,其中就包括融创建发在石景山古城地铁站旁的“长安和玺”,如今衙门口的项目案名为“长安悦玺”,从名字也可以看出这是“长安和玺”的姐妹盘。同“长安和玺”一样,“长安悦玺”定位是改善盘,户型不错,强调品质。

项目占地面积38613.284平米,建筑面积108117.195,容积率2.8。从石景山目前在售楼盘分布来看,绝大多数楼盘均位于五环外区域,比如西黄村,古城,北辛安等板块。长安悦玺属于石景山区鲁谷片区,西五环内的高层建筑。

项目规划有14栋楼,楼层从9-27层,最高不超过80米,总套数为917套。

从大门和外立面效果图来看,项目与“长安和玺”类似,都是现代中式风格。

配套

交通:从交通来看,驾车上西五环或者莲石东路非常方便,莲石东路是快速路,直通西二环,进城便捷。

项目的位置距离现有地铁较远,规划中的M11号线一期西段冬奥会4站(金顶街站-金安桥-北辛安-新首钢)将于冬奥会之前开通,11号线剩余线路也进入了北京轨道交通三期规划。

商业:商业配套上,项目周边有永辉超市,5公里范围内有石景山万达广场,翠微百货(大成路店)等等商业中心,能保证基本生活和购物需求。

万达广场

教育:距离市重点幼儿园石景山实验幼儿园直线距离约3.7公里;直线距离约450米可达北京爱乐实验小学;北侧直线距离约1.5公里即可到达京源学校,直线距离约2.5公里可达北京十一学校,项目周边教育资源比较丰富,将来入学应该不是问题。

北京十一学校

医疗:解放军总医院301医院、302医院、空军总医院等一流医疗机构;天坛医院、北京石景山医院,能满足业主的日常就医需求。

301医院

户型:

项目户型面积为97㎡、104㎡、122㎡、124㎡、138㎡、152㎡、173㎡,整体偏改善户型。

A户型97平米三居:项目最小户型,南北通透,户型方正,空间利用基本无浪费。客厅和两个卧室朝南,南向面宽9.3米,主卧独卫设计,动静分离。美中不足的就是主卧里的卫生间是暗卫。

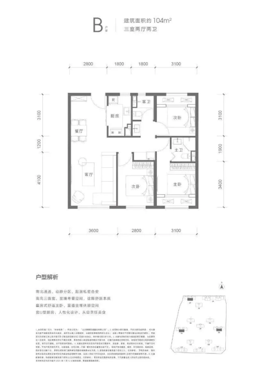
B户型104平米三居:基本可以看为是A户型的PLUS版,整体尺度更宽敞,相对A户型,此户型将会更加舒适一些,另外,A和B户型是两梯四户,是带连廊的,大家一定注意!

C1户型124平米四居:三面宽朝阳,两个卧室分居客厅两侧,南向面宽10.2米;8窗全明,边户主客卫生间都是明卫,餐客厨一体化设计,通风和采光效果极佳;此项目主力户型,总体上非常的不错!建议有需要的直接盘这个户型!

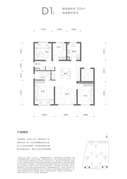
D1户型是122平米四居户型,南北通透,全明格局。U性厨房,餐客厨一体化设计,南向总面宽10.3米,视野宽阔。缺憾是北向次卧略小,做儿童房比较合适。

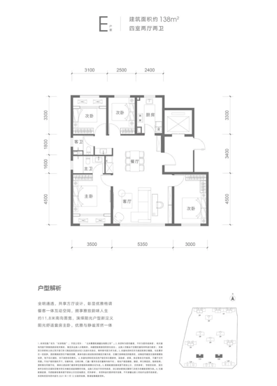
E户型是138平米四居,这个户型已经是两梯两户,赠送了私属电梯厅,全明通透,南向面宽高达11.8米,客厅面宽5.35米,宽厅的采光效果更好,舒适度更高。

F户型是152平米四居,南北通透,南向双套房设计,私享玄关门厅。最大的亮点是客厅面宽高达6.5米,超宽横厅,尺度奢侈。缺憾是厨房略小,如果再增加一个西厨就更好了。这也是我最喜欢的一个户型,从楼栋的位置来看,也是小区的中心位置,适合追求品质的改善购房者。

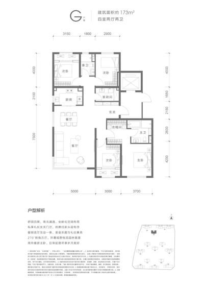
G户型173平米四室两厅两卫:此户型为长安悦玺的楼王户型,南北通透四居;餐厨连体;270转角方厅,主打视野无敌,观景(小区)最佳位置。

价格:

石景山板块,从2018年寰宇天下开始重新供应新房,三年来供应了超过10个新房项目,长安悦玺是石景山第一个五环内的新房项目,其余的新盘均在五环外。 从土地拍卖的价格也可以看出,石景山的房价即将进入8万+的时代。长安悦玺的楼面价高达6万/平米,而房价上限是7.95万/平米,总价在780-1400万左右。

作为一个精装交付的品质改善盘,在这个楼面价之上的定价是合理的,希望豪宅专家融创能够做出令人满意的品质。

点评:

总体来说,小编认为长安悦玺的三居户型可以作为入门,124 m²的户型总价千万以内,对于改善需求而言功能性比较实用了。对品质有追求且还是刚需的,融创长安悦玺值得考虑。未来规划成熟后交通也很方便,品质房7万以下在城六区未来不太容易出了

长安悦玺 普通住宅
3.69
北京综合指数第41
79500元/㎡
开盘时间2021年8月20日
地址:石景山衙门口南路京汉旭城家园南侧
  • 最新优惠、楼盘活动通知我

想要了解更多详情,欢迎关注凤凰网房产北京,第一时间掌握最新动态~


点击查看完整内容
标签: 改善 融创 长安悦玺 【责编】 闫希(PO432)
免责声明:本文仅代表作者个人观点,与凤凰网房产无关。其原创性以及文中陈述文字和内容未经本站证实,对本文以及其中全部或者部分内容、文字的真实性、完整性、及时性,本站不作任何保证或承诺,请读者仅作参考,请读者自行核实相关内容。
上一篇: 下一篇:
百科推荐
楼盘推荐 更多
推荐阅读
再度加冕!洞见时代需求,广佛新世界湾区“好房子”人居品质热销领跑黄金周
风财讯
00:14
新闻快讯
家门之外,双园环绕?这家开发商太懂生活了!
凤凰网房产南京站
10-01 20:43
市场
500万内交标天花板!白云之星建面约115㎡奢装平层引爆国庆市场
风财讯
10-01 19:49
新闻快讯
北京9月别墅市场“三冠王”诞生!电建地产泷悦·玖宸半山院子首开月霸榜热销
凤凰网房产北京
昨天
市场
“天下第一烂尾楼”改酒店,最高每晚3888元,国庆竟一房难求?
风财讯
昨天
新闻快讯

金科天玺


查看详情